EPD-IES-0027746:003
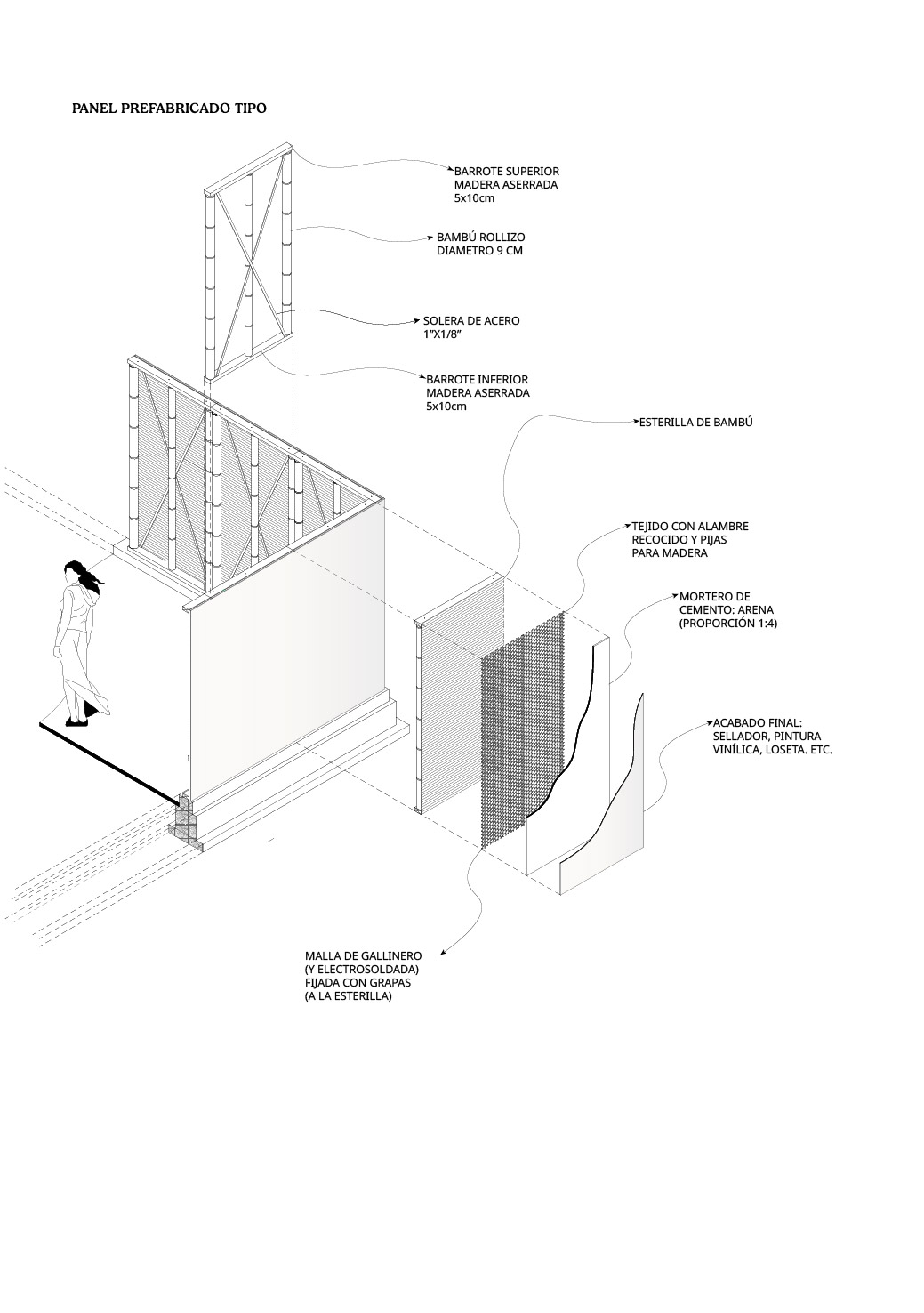
BIOPANEL® - PREFABRICATED BAMBOO MODULAR COMPONENTS FOR STRUCTURAL WALLS
The Biopanel® is a prefabricated construction system consisting of modular structural and architectural walls made from bamboo, steel, and wood. This system transfers the roof and floor loads to the foundation and withstands the lateral forces acting on the structure.
| Registration number | EPD-IES-0027746:003 |
|---|---|
| Status | Valid |
| Version date | 2025-06-17 |
| Validity date | 2030-06-17 |
| PCR | 2019:14 Construction products (EN 15804+A2) (version 1.3.4) 1.3.4 |
| Standards conformance | ISO 14025:2006, EN 15804:2012+A2:2019/AC:2021 |
| Licensee | EPD Mexico |
| Geographical scope | Mexico |
| LCA Practitioners | Mireya Gonzalez, mgonzalez@cadis.earth, Bambuterra SAPI de CV Dulce Alejandra Zaragoza Ayala, dzaragoza@cadis.earth, Bambuterra SAPI de CV |